Top.Mail.Ru

улица Маршала Катукова, д. 12, к. 1

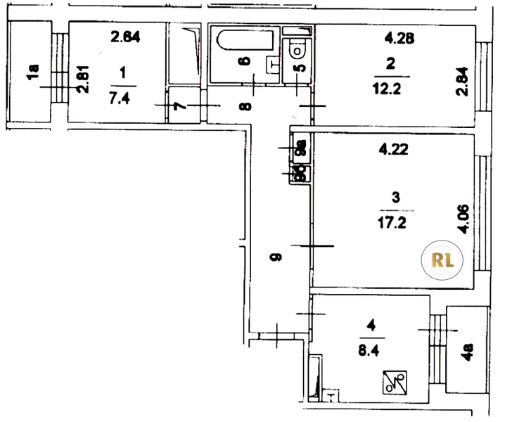
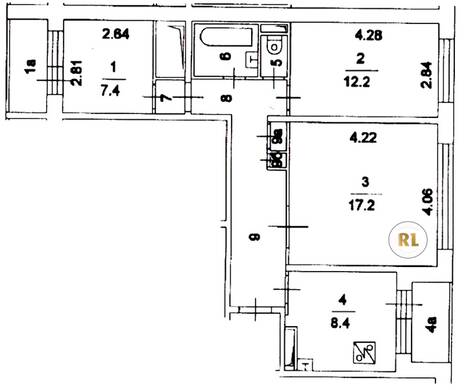
База каталог, Кол-во подъездов: 4, Отсутствует, П-30, Москва, Строгино, Площадь парковки: 0, Пассажирский лифт: 8, От метро: 650, Северо-Западный, нет, Наименьшее кол-во этажей: 12, Наибольшее кол-во этажей: 12, Строгино, Кол-во помещений: 187, Кол-во нежилых помещений: 0, Год ввода в эксплуатацию: 1980, 3-комн, Кол-во жилых помещений: 187, Не присвоен, дом 12, корпус 1, нет, да, да, да, да, да, Имеется, Грузовых лифтов: 0, Год постройки: 1980, улица Маршала Катукова, 37.404213, 55.808892
Свяжитесь со мной на счет цены
10 дн.
T55S808892L37S404213T

На карте


Условия сделки

Источник


Старт продаж

Возможно заинтересует