Top.Mail.Ru

Мурманский проезд, д. 20

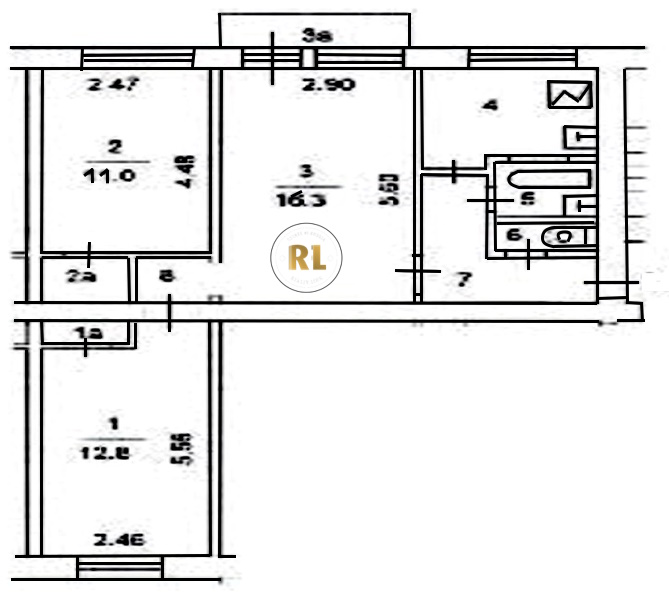
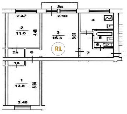
База каталог, Кол-во подъездов: 4, Отсутствует, I-511, Москва, Останкинский, Площадь парковки: 0, Пассажирский лифт: 0, От метро: 1540, Северо-Восточный, нет, Наименьшее кол-во этажей: 5, Наибольшее кол-во этажей: 5, Бутырская, Кол-во помещений: 81, Кол-во нежилых помещений: 1, Год ввода в эксплуатацию: 1960, 3-комн, Кол-во жилых помещений: 80, Не присвоен, дом 20, нет, да, да, да, да, нет, Отсутствует, Грузовых лифтов: 0, Год постройки: 1960, Мурманский проезд, 37.619306, 55.808994
Свяжитесь со мной на счет цены
10 дн.
T55S808994L37S619306T

На карте


Условия сделки

Источник


Старт продаж

Возможно заинтересует