Top.Mail.Ru

Открытое шоссе, д. 6, к. 1

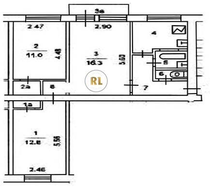
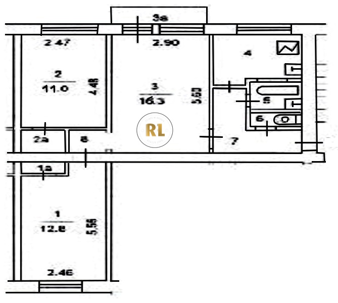
База каталог, Кол-во подъездов: 4, I-511, Москва, Богородское, Площадь парковки: 0, Пассажирский лифт: 0, От метро: 600, Восточный, нет, Наименьшее кол-во этажей: 0, Наибольшее кол-во этажей: 5, Бульвар Рокоссовского, Кол-во помещений: 80, Кол-во нежилых помещений: 0, Год ввода в эксплуатацию: 1964, 3-комн, Кол-во жилых помещений: 80, С, дом 6, корпус 1, нет, да, да, да, да, да, Имеется, Грузовых лифтов: 0, Год постройки: 1964, Открытое шоссе, 37.731021, 55.809565
Свяжитесь со мной на счет цены
10 дн.
T55S809565L37S731021T

На карте


Условия сделки

Источник


Старт продаж

Возможно заинтересует