Top.Mail.Ru

проезд Соломенной Сторожки, д. 6

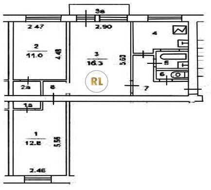
База каталог, Кол-во подъездов: 4, I-511, Москва, Тимирязевский, Площадь парковки: 0, Пассажирский лифт: 0, От метро: 1250, Северный, нет, Наименьшее кол-во этажей: 5, Наибольшее кол-во этажей: 5, Дмитровская, Кол-во помещений: 80, Кол-во нежилых помещений: 0, Год ввода в эксплуатацию: 1958, 3-комн, Кол-во жилых помещений: 80, Не присвоен, дом 6, нет, да, да, да, да, нет, Грузовых лифтов: 0, Год постройки: 1958, проезд Соломенной Сторожки, 37.565398, 55.809899
Свяжитесь со мной на счет цены
10 дн.
T55S809899L37S565398T

На карте


Условия сделки

Источник


Старт продаж

Возможно заинтересует