Top.Mail.Ru

Щелковское шоссе, д. 82, к. 1

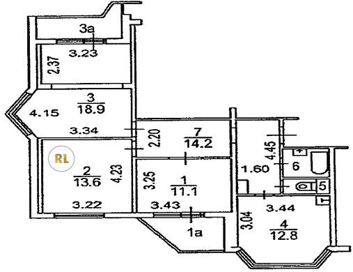
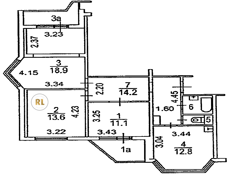
База каталог, Кол-во помещений: 396, Имеется, П-44T, Москва, Северное Измайлово, Площадь парковки: 0, Пассажирский лифт: 6, От метро: 1060, Восточный, нет, Наименьшее кол-во этажей: 1, Наибольшее кол-во этажей: 17, Щёлковская, Кол-во подъездов: 6, Год ввода в эксплуатацию: 2004, Кол-во нежилых помещений: 6, 3-комн, Кол-во жилых помещений: 390, дом 82, корпус 1, нет, да, да, да, да, да, Имеется, Грузовых лифтов: 6, Год постройки: 2004, Щелковское шоссе, 37.815606, 55.810612
Свяжитесь со мной на счет цены
10 дн.
T55S810612L37S815606T

На карте


Условия сделки

Источник


Старт продаж

Возможно заинтересует