Top.Mail.Ru

Щелковское шоссе, д. 35, к. 1

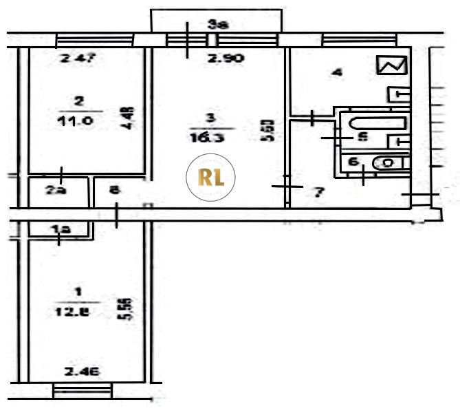
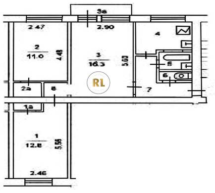
База каталог, Кол-во помещений: 80, I-511, Москва, Гольяново, Площадь парковки: 0, Пассажирский лифт: 0, От метро: 980, Восточный, нет, Наименьшее кол-во этажей: 0, Наибольшее кол-во этажей: 5, Щёлковская, Кол-во подъездов: 4, Год ввода в эксплуатацию: 1966, Кол-во нежилых помещений: 0, 3-комн, Кол-во жилых помещений: 80, дом 35, корпус 1, нет, да, да, да, да, да, Грузовых лифтов: 0, Год постройки: 1966, Щелковское шоссе, 37.783913, 55.810627
Свяжитесь со мной на счет цены
10 дн.
T55S810627L37S783913T

На карте


Условия сделки

Источник


Старт продаж

Возможно заинтересует