Top.Mail.Ru

Щелковское шоссе, д. 47, к. 1

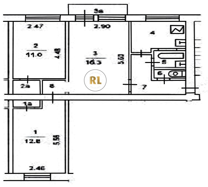
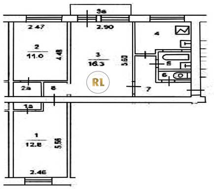
База каталог, Кол-во подъездов: 4, I-511, Москва, Гольяново, Площадь парковки: 0, Пассажирский лифт: 0, От метро: 730, Восточный, нет, Наименьшее кол-во этажей: 5, Наибольшее кол-во этажей: 5, Щёлковская, Кол-во помещений: 80, Кол-во нежилых помещений: 0, Год ввода в эксплуатацию: 1964, 3-комн, Кол-во жилых помещений: 80, D, дом 47, корпус 1, нет, да, да, да, да, да, Грузовых лифтов: 0, Год постройки: 1964, Щелковское шоссе, 37.787866, 55.810744
Свяжитесь со мной на счет цены
10 дн.
T55S810744L37S787866T

На карте


Условия сделки

Источник


Старт продаж

Возможно заинтересует