Top.Mail.Ru

Щелковское шоссе, д. 55

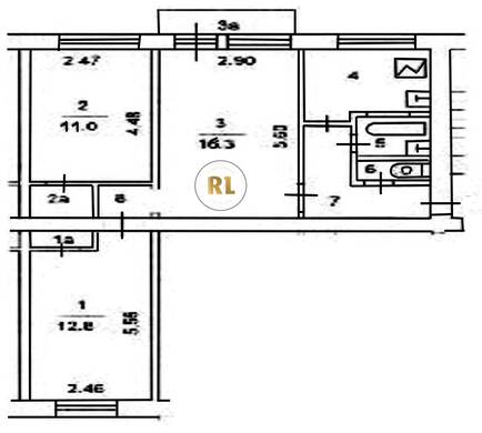
База каталог, Кол-во подъездов: 4, I-511, Москва, Гольяново, Площадь парковки: 0, Пассажирский лифт: 0, От метро: 630, Восточный, нет, Наименьшее кол-во этажей: 5, Наибольшее кол-во этажей: 5, Щёлковская, Кол-во помещений: 81, Кол-во нежилых помещений: 1, Год ввода в эксплуатацию: 1964, 3-комн, Кол-во жилых помещений: 80, D, дом 55, нет, да, да, да, да, да, Грузовых лифтов: 0, Год постройки: 1964, Щелковское шоссе, 37.790139, 55.810799
Свяжитесь со мной на счет цены
10 дн.
T55S810799L37S790139T

На карте


Условия сделки

Источник


Старт продаж

Возможно заинтересует