Top.Mail.Ru

улица Бирюсинка, д. 10

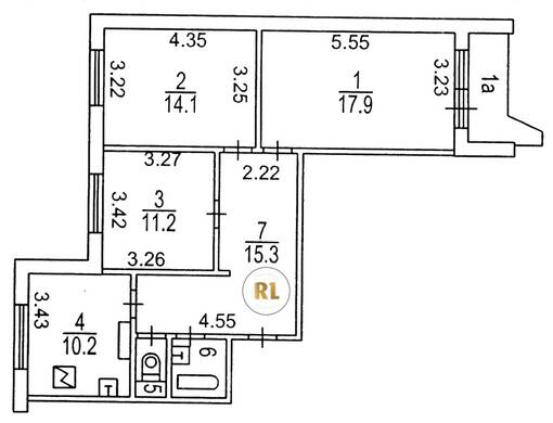
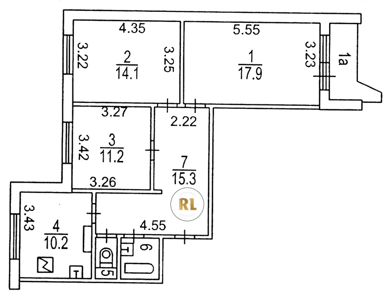
База каталог, Кол-во помещений: 119, П-44, Москва, Гольяново, Площадь парковки: 0, Пассажирский лифт: 2, От метро: 1230, Восточный, нет, Наименьшее кол-во этажей: 14, Наибольшее кол-во этажей: 14, Щёлковская, Кол-во подъездов: 2, Год ввода в эксплуатацию: 2011, Кол-во нежилых помещений: 12, 3-комн, Кол-во жилых помещений: 107, дом 10, нет, да, да, да, да, нет, Грузовых лифтов: 2, Год постройки: 2011, улица Бирюсинка, 37.780491, 55.811037
Свяжитесь со мной на счет цены
10 дн.
T55S811037L37S780491T

На карте


Условия сделки

Источник


Старт продаж

Возможно заинтересует