Top.Mail.Ru

улица Всеволода Вишневского, д. 9, к. 2

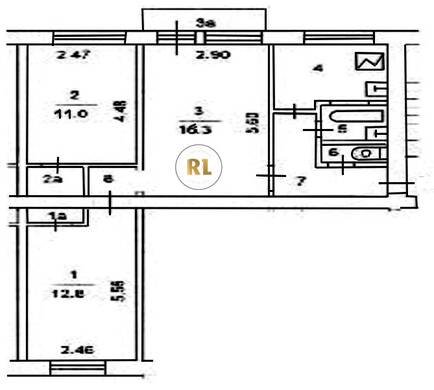
База каталог, Кол-во подъездов: 3, I-511, Москва, Тимирязевский, Площадь парковки: 0, Пассажирский лифт: 0, От метро: 900, Северный, нет, Наименьшее кол-во этажей: 5, Наибольшее кол-во этажей: 5, Тимирязевская, Кол-во помещений: 60, Кол-во нежилых помещений: 0, Год ввода в эксплуатацию: 1962, 3-комн, Кол-во жилых помещений: 60, E, дом 9, корпус 2, нет, да, да, да, да, да, Грузовых лифтов: 0, Год постройки: 1962, улица Всеволода Вишневского, 37.570366, 55.811184
Свяжитесь со мной на счет цены
10 дн.
T55S811184L37S570366T

На карте


Условия сделки

Источник


Старт продаж

Возможно заинтересует