Top.Mail.Ru

улица Бирюсинка, д. 15, к. 2

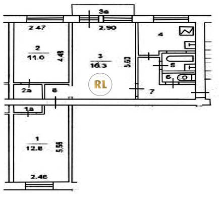
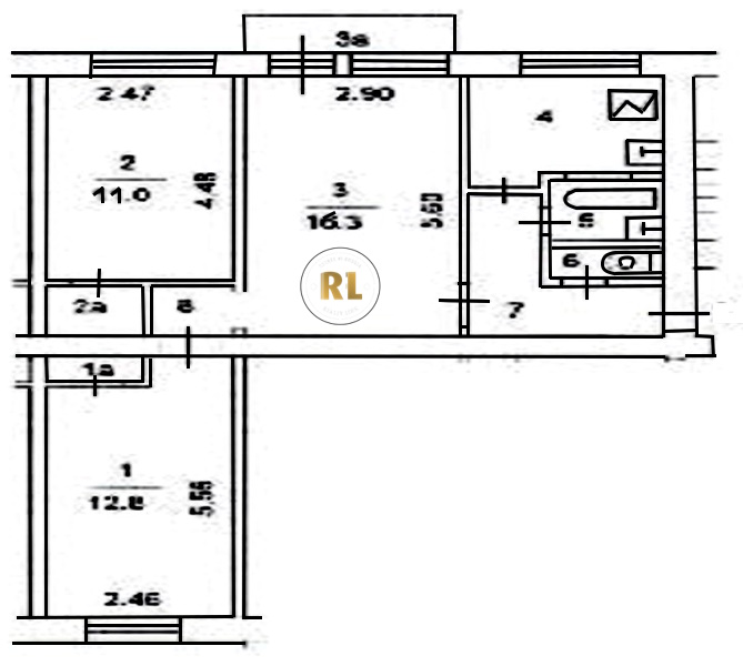
База каталог, Кол-во подъездов: 4, I-511, Москва, Гольяново, Площадь парковки: 0, Пассажирский лифт: 0, От метро: 1160, Восточный, нет, Наименьшее кол-во этажей: 0, Наибольшее кол-во этажей: 5, Щёлковская, Кол-во помещений: 80, Кол-во нежилых помещений: 0, Год ввода в эксплуатацию: 1964, 3-комн, Кол-во жилых помещений: 80, дом 15, корпус 2, нет, да, да, да, да, нет, Имеется, Грузовых лифтов: 0, Год постройки: 1964, улица Бирюсинка, 37.782440, 55.811235
Свяжитесь со мной на счет цены
10 дн.
T55S811235L37S782440T

На карте


Условия сделки

Источник


Старт продаж

Возможно заинтересует