Top.Mail.Ru

улица Бочкова, д. 6, к. 2

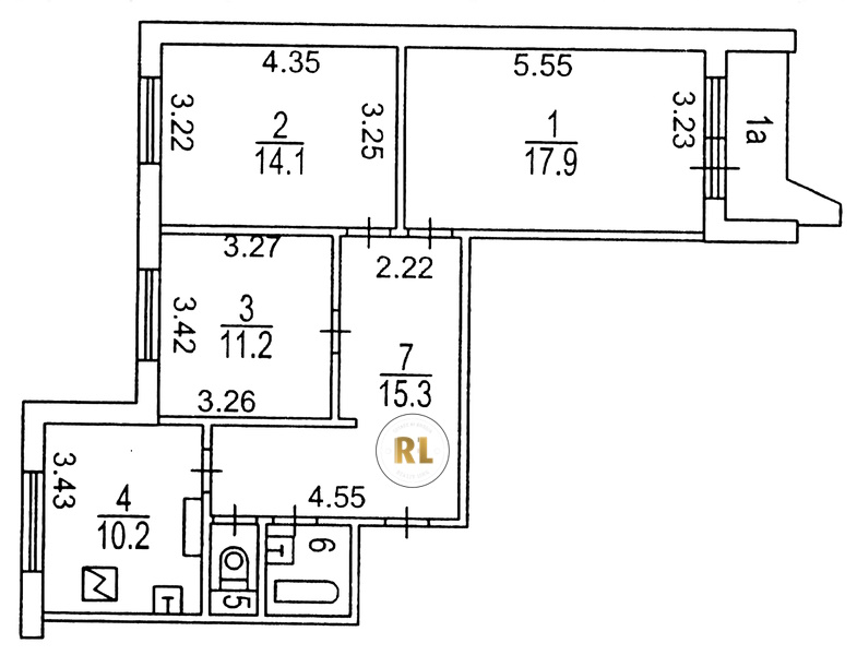
База каталог, Кол-во подъездов: 3, Отсутствует, П-44, Москва, Останкинский, Площадь парковки: 0, Пассажирский лифт: 3, От метро: 680, Северо-Восточный, нет, Наименьшее кол-во этажей: 17, Наибольшее кол-во этажей: 17, Алексеевская, Кол-во помещений: 204, Кол-во нежилых помещений: 1, Год ввода в эксплуатацию: 1983, 3-комн, Кол-во жилых помещений: 203, Не присвоен, дом 6, корпус 2, нет, да, да, да, да, да, Имеется, Грузовых лифтов: 3, Год постройки: 1983, улица Бочкова, 37.633958, 55.811290
24 000 000 Р
10 дн.
T55S811290L37S633958T
+

На карте


Условия сделки

Источник


Старт продаж

Возможно заинтересует