Top.Mail.Ru

улица Всеволода Вишневского, д. 9, к. 1

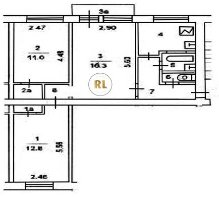
База каталог, Кол-во подъездов: 3, I-511, Москва, Тимирязевский, Площадь парковки: 0, Пассажирский лифт: 0, От метро: 880, Северный, нет, Наименьшее кол-во этажей: 5, Наибольшее кол-во этажей: 5, Дмитровская, Кол-во помещений: 60, Кол-во нежилых помещений: 0, Год ввода в эксплуатацию: 1963, 3-комн, Кол-во жилых помещений: 60, E, дом 9, корпус 1, нет, да, да, да, да, да, Грузовых лифтов: 0, Год постройки: 1963, улица Всеволода Вишневского, 37.571058, 55.811331
Свяжитесь со мной на счет цены
10 дн.
T55S811331L37S571058T

На карте


Условия сделки

Источник


Старт продаж

Возможно заинтересует