Top.Mail.Ru

Щелковское шоссе, д. 43, к. 2

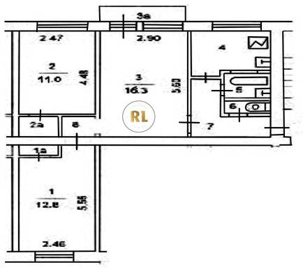
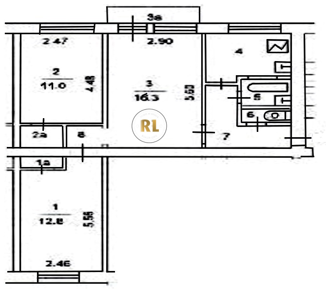
База каталог, Кол-во подъездов: 4, I-511, Москва, Гольяново, Площадь парковки: 0, Пассажирский лифт: 0, От метро: 940, Восточный, нет, Наименьшее кол-во этажей: 0, Наибольшее кол-во этажей: 5, Щёлковская, Кол-во помещений: 79, Кол-во нежилых помещений: 0, Год ввода в эксплуатацию: 1965, 3-комн, Кол-во жилых помещений: 79, дом 43, корпус 2, нет, да, да, да, да, да, Имеется, Грузовых лифтов: 0, Год постройки: 1965, Щелковское шоссе, 37.786231, 55.811346
Свяжитесь со мной на счет цены
10 дн.
T55S811346L37S786231T

На карте


Условия сделки

Источник


Старт продаж

Возможно заинтересует