Top.Mail.Ru

улица Бирюсинка, д. 13, к. 1

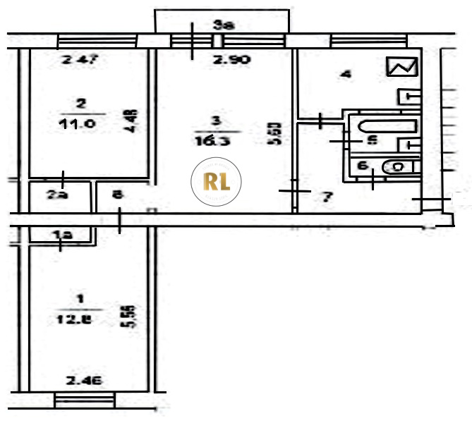
База каталог, Кол-во помещений: 60, I-511, Москва, Гольяново, Площадь парковки: 0, Пассажирский лифт: 0, От метро: 1270, Восточный, нет, Наименьшее кол-во этажей: 0, Наибольшее кол-во этажей: 5, Щёлковская, Кол-во подъездов: 3, Год ввода в эксплуатацию: 1964, Кол-во нежилых помещений: 0, 3-комн, Кол-во жилых помещений: 60, дом 13, корпус 1, нет, да, да, да, да, нет, Грузовых лифтов: 0, Год постройки: 1964, улица Бирюсинка, 37.781371, 55.811902
Свяжитесь со мной на счет цены
10 дн.
T55S811902L37S781371T

На карте


Условия сделки

Источник


Старт продаж

Возможно заинтересует