Top.Mail.Ru

улица Бирюсинка, д. 13, к. 2

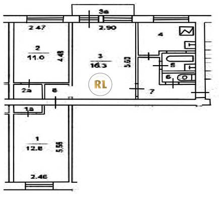
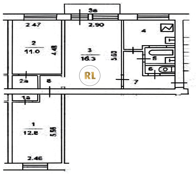
База каталог, Кол-во помещений: 60, I-511, Москва, Гольяново, Площадь парковки: 0, Пассажирский лифт: 0, От метро: 1260, Восточный, нет, Наименьшее кол-во этажей: 0, Наибольшее кол-во этажей: 5, Щёлковская, Кол-во подъездов: 3, Год ввода в эксплуатацию: 1965, Кол-во нежилых помещений: 0, 3-комн, Кол-во жилых помещений: 60, дом 13, корпус 2, нет, да, да, да, да, нет, Грузовых лифтов: 0, Год постройки: 1965, улица Бирюсинка, 37.782081, 55.811917
Свяжитесь со мной на счет цены
10 дн.
T55S811917L37S782081T

На карте


Условия сделки

Источник


Старт продаж

Возможно заинтересует