Top.Mail.Ru

Уральская ул., д. 1, к. 1

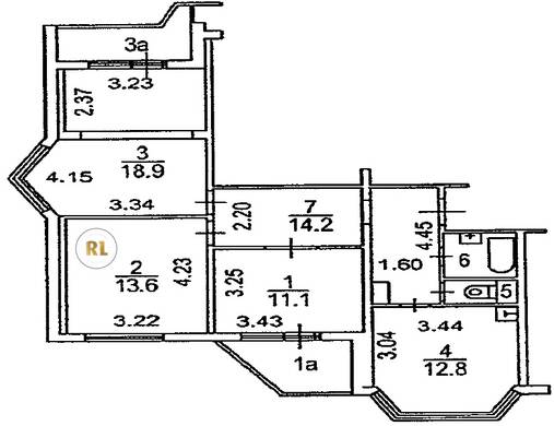
База каталог, Кол-во помещений: 209, П-44T, Москва, Гольяново, Площадь парковки: 0, Пассажирский лифт: 3, От метро: 247, Восточный, нет, Наименьшее кол-во этажей: 17, Наибольшее кол-во этажей: 17, Щёлковская, Кол-во подъездов: 3, Год ввода в эксплуатацию: 2010, Кол-во нежилых помещений: 12, 3-комн, Кол-во жилых помещений: 197, дом 1, корпус 1, да, да, да, да, да, да, Грузовых лифтов: 3, Год постройки: 2010, Уральская улица, 37.796427, 55.811958
Свяжитесь со мной на счет цены
10 дн.
T55S811958L37S796427T

На карте


Условия сделки

Источник


Старт продаж

Возможно заинтересует