Top.Mail.Ru

Астрадамская ул., д. 7А

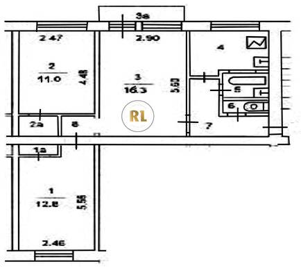
База каталог, Кол-во подъездов: 3, I-511, Москва, Тимирязевский, Площадь парковки: 0, Пассажирский лифт: 0, От метро: 1260, Северный, нет, Наименьшее кол-во этажей: 5, Наибольшее кол-во этажей: 5, Тимирязевская, Кол-во помещений: 62, Кол-во нежилых помещений: 2, Год ввода в эксплуатацию: 1963, 3-комн, Кол-во жилых помещений: 60, E, дом 7А, нет, да, да, да, да, нет, Грузовых лифтов: 0, Год постройки: 1963, Астрадамская улица, 37.562676, 55.811978
Свяжитесь со мной на счет цены
10 дн.
T55S811978L37S562676T

На карте


Условия сделки

Источник


Старт продаж

Возможно заинтересует