Top.Mail.Ru

улица Габричевского, д. 1, к. 1

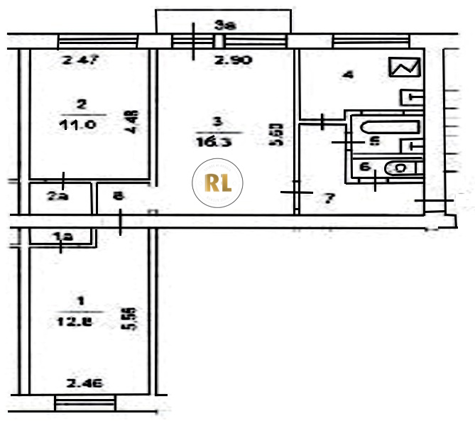
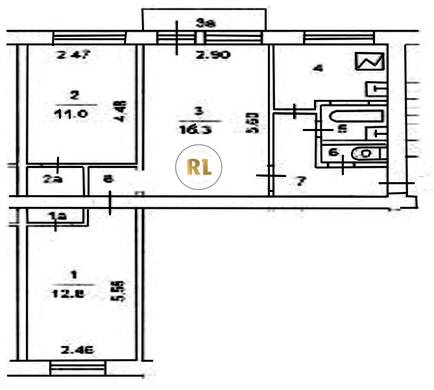
База каталог, Кол-во подъездов: 4, Имеется, I-511, Москва, Покровское-Стрешнево, Площадь парковки: 0, Пассажирский лифт: 0, От метро: 760, Северо-Западный, нет, Наименьшее кол-во этажей: 1, Наибольшее кол-во этажей: 5, Щукинская, Кол-во помещений: 81, Кол-во нежилых помещений: 1, Год ввода в эксплуатацию: 1961, 3-комн, Кол-во жилых помещений: 80, Не присвоен, дом 1, корпус 1, нет, да, да, да, да, да, Имеется, Грузовых лифтов: 0, Год постройки: 1961, улица Габричевского, 37.455085, 55.812140
Свяжитесь со мной на счет цены
10 дн.
T55S812140L37S455085T

На карте


Условия сделки

Источник


Старт продаж

Возможно заинтересует