Top.Mail.Ru

Краснобогатырская ул., д. 21

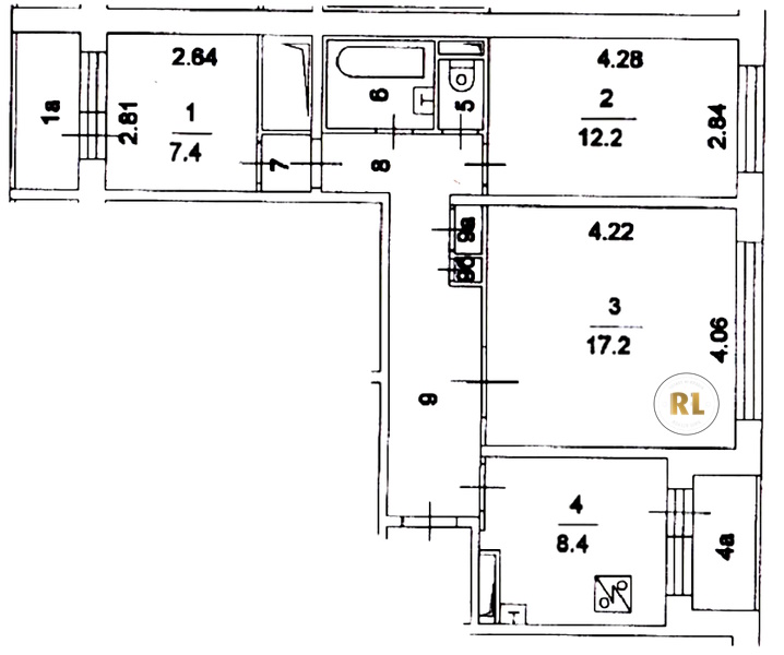
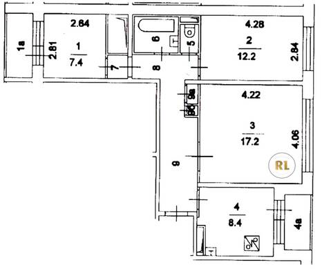
База каталог, Кол-во подъездов: 9, П-30, Москва, Богородское, Площадь парковки: 0, Пассажирский лифт: 9, От метро: 2120, Восточный, нет, Наименьшее кол-во этажей: 0, Наибольшее кол-во этажей: 12, Преображенская площадь, Кол-во помещений: 427, Кол-во нежилых помещений: 0, Год ввода в эксплуатацию: 1974, 3-комн, Кол-во жилых помещений: 427, С, дом 21, нет, да, да, нет, нет, нет, Имеется, Грузовых лифтов: 9, Год постройки: 1974, Краснобогатырская улица, 37.700514, 55.812287
Свяжитесь со мной на счет цены
10 дн.
T55S812287L37S700514T

На карте


Условия сделки

Источник


Старт продаж

Возможно заинтересует