Top.Mail.Ru

Врачебный проезд, д. 2

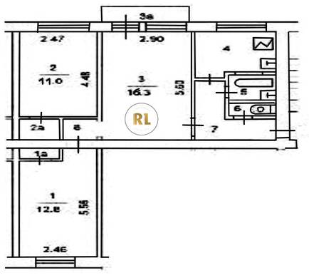
База каталог, Кол-во подъездов: 3, Имеется, I-511, Москва, Покровское-Стрешнево, Площадь парковки: 0, Пассажирский лифт: 0, От метро: 450, Северо-Западный, нет, Наименьшее кол-во этажей: 1, Наибольшее кол-во этажей: 5, Щукинская, Кол-во помещений: 60, Кол-во нежилых помещений: 0, Год ввода в эксплуатацию: 1961, 3-комн, Кол-во жилых помещений: 60, Не присвоен, дом 2, да, да, да, да, да, да, Имеется, Грузовых лифтов: 0, Год постройки: 1961, Врачебный проезд, 37.463682, 55.812378
Свяжитесь со мной на счет цены
10 дн.
T55S812378L37S463682T

На карте


Условия сделки

Источник


Старт продаж

Возможно заинтересует