Top.Mail.Ru

улица Бирюсинка, д. 11/38

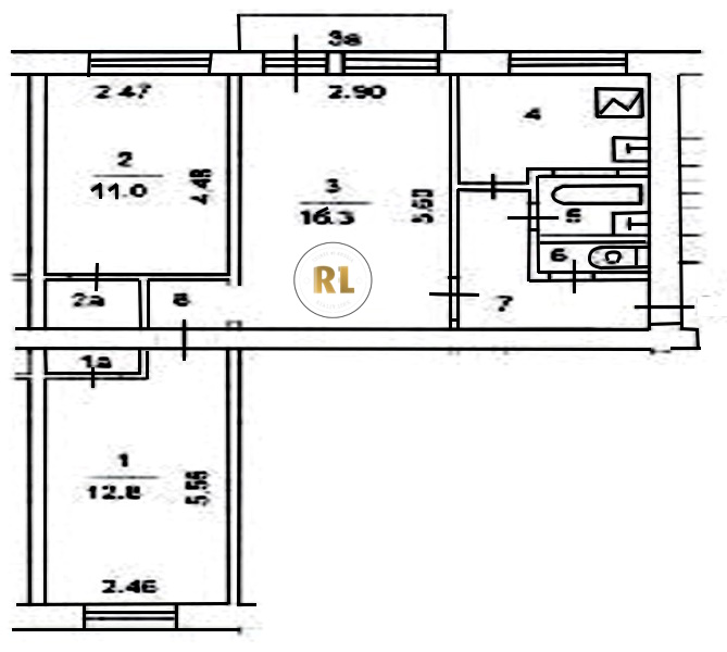
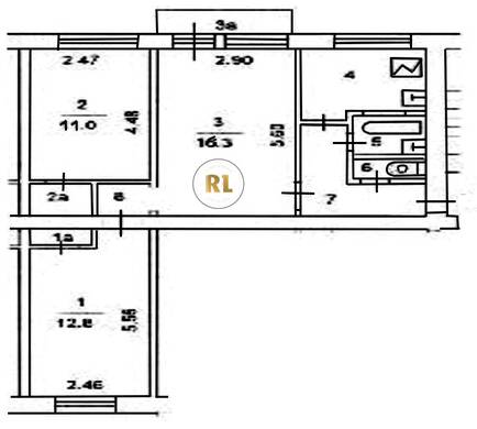
База каталог, Кол-во помещений: 80, I-511, Москва, Гольяново, Площадь парковки: 0, Пассажирский лифт: 0, От метро: 1300, Восточный, нет, Наименьшее кол-во этажей: 0, Наибольшее кол-во этажей: 5, Щёлковская, Кол-во подъездов: 4, Год ввода в эксплуатацию: 1965, Кол-во нежилых помещений: 0, 3-комн, Кол-во жилых помещений: 80, дом 11/38, нет, да, да, да, да, нет, Грузовых лифтов: 0, Год постройки: 1965, улица Бирюсинка, 37.781183, 55.812514
Свяжитесь со мной на счет цены
10 дн.
T55S812514L37S781183T

На карте


Условия сделки

Источник


Старт продаж

Возможно заинтересует