Top.Mail.Ru

Амурская ул., д. 40

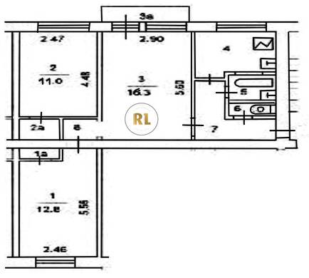
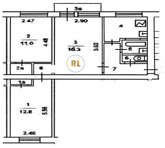
База каталог, Кол-во помещений: 80, I-511, Москва, Гольяново, Площадь парковки: 0, Пассажирский лифт: 0, От метро: 1300, Восточный, нет, Наименьшее кол-во этажей: 0, Наибольшее кол-во этажей: 5, Щёлковская, Кол-во подъездов: 4, Год ввода в эксплуатацию: 1965, Кол-во нежилых помещений: 0, 3-комн, Кол-во жилых помещений: 80, дом 40, нет, да, да, да, да, нет, Грузовых лифтов: 0, Год постройки: 1965, Амурская улица, 37.781820, 55.812595
Свяжитесь со мной на счет цены
10 дн.
T55S812595L37S781820T

На карте


Условия сделки

Источник


Старт продаж

Возможно заинтересует