Top.Mail.Ru

Игральная ул., д. 4

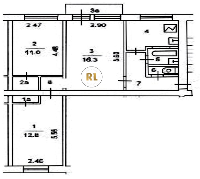
База каталог, Кол-во подъездов: 10, I-511, Москва, Богородское, Площадь парковки: 0, Пассажирский лифт: 0, От метро: 1760, Восточный, нет, Наименьшее кол-во этажей: 0, Наибольшее кол-во этажей: 5, Бульвар Рокоссовского, Кол-во помещений: 200, Кол-во нежилых помещений: 0, Год ввода в эксплуатацию: 1964, 3-комн, Кол-во жилых помещений: 200, В, дом 4, нет, да, да, да, нет, нет, Грузовых лифтов: 0, Год постройки: 1964, Игральная улица, 37.711033, 55.812676
Свяжитесь со мной на счет цены
10 дн.
T55S812676L37S711033T

На карте


Условия сделки

Источник


Старт продаж

Возможно заинтересует