Top.Mail.Ru

улица Габричевского, д. 3, к. 1

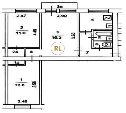
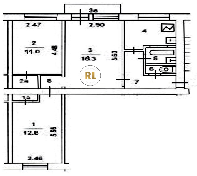
База каталог, Кол-во подъездов: 4, Имеется, I-511, Москва, Покровское-Стрешнево, Площадь парковки: 0, Пассажирский лифт: 0, От метро: 840, Северо-Западный, нет, Наименьшее кол-во этажей: 1, Наибольшее кол-во этажей: 5, Щукинская, Кол-во помещений: 82, Кол-во нежилых помещений: 2, Год ввода в эксплуатацию: 1962, 3-комн, Кол-во жилых помещений: 80, Не присвоен, дом 3, корпус 1, нет, да, да, да, да, да, Имеется, Грузовых лифтов: 0, Год постройки: 1962, улица Габричевского, 37.455660, 55.812798
Свяжитесь со мной на счет цены
10 дн.
T55S812798L37S455660T

На карте


Условия сделки

Источник


Старт продаж

Возможно заинтересует