Top.Mail.Ru

Амурская ул., д. 70

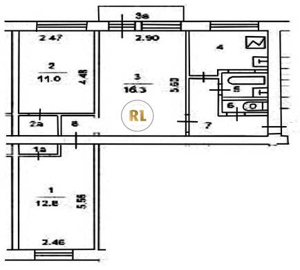
База каталог, Кол-во подъездов: 4, I-511, Москва, Гольяново, Площадь парковки: 0, Пассажирский лифт: 0, От метро: 450, Восточный, нет, Наименьшее кол-во этажей: 5, Наибольшее кол-во этажей: 5, Щёлковская, Кол-во помещений: 81, Кол-во нежилых помещений: 1, Год ввода в эксплуатацию: 1963, 3-комн, Кол-во жилых помещений: 80, D, дом 70, да, да, да, да, да, да, Грузовых лифтов: 0, Год постройки: 1963, Амурская улица, 37.794415, 55.812813
Свяжитесь со мной на счет цены
10 дн.
T55S812813L37S794415T

На карте


Условия сделки

Источник


Старт продаж

Возможно заинтересует