Top.Mail.Ru

Амурская ул., д. 56

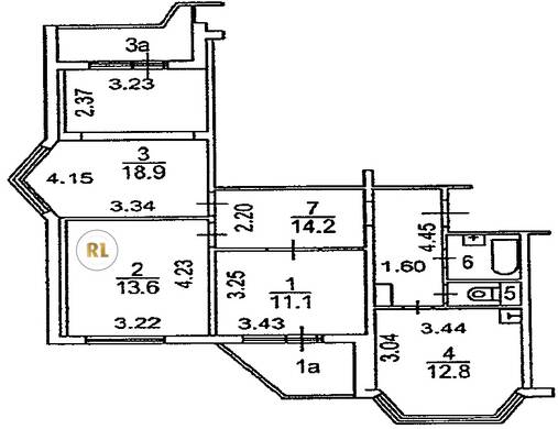
База каталог, Кол-во помещений: 305, Имеется, П-44T, Москва, Гольяново, Площадь парковки: 0, Пассажирский лифт: 5, От метро: 940, Восточный, нет, Наименьшее кол-во этажей: 14, Наибольшее кол-во этажей: 17, Щёлковская, Кол-во подъездов: 5, Год ввода в эксплуатацию: 2013, Кол-во нежилых помещений: 4, 3-комн, Кол-во жилых помещений: 301, дом 56, нет, да, да, да, да, да, Имеется, Грузовых лифтов: 5, Год постройки: 2012, Амурская улица, 37.787156, 55.813005
Свяжитесь со мной на счет цены
10 дн.
T55S813005L37S787156T

На карте


Условия сделки

Источник


Старт продаж

Возможно заинтересует