Top.Mail.Ru

Ярославская ул., д. 2

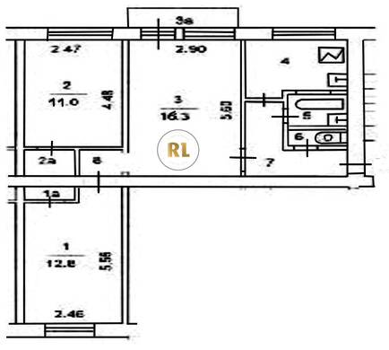
База каталог, Кол-во подъездов: 6, I-511, Москва, Алексеевский, Площадь парковки: 0, Пассажирский лифт: 0, От метро: 930, Северо-Восточный, нет, Наименьшее кол-во этажей: 5, Наибольшее кол-во этажей: 5, ВДНХ, Кол-во помещений: 120, Кол-во нежилых помещений: 0, Год ввода в эксплуатацию: 1965, 3-комн, Кол-во жилых помещений: 120, Не присвоен, дом 2, нет, да, да, да, да, да, Имеется, Грузовых лифтов: 0, Год постройки: 1965, Ярославская улица, 37.646777, 55.813829
Свяжитесь со мной на счет цены
10 дн.
T55S813829L37S646777T

На карте


Условия сделки

Источник


Старт продаж

Возможно заинтересует