Top.Mail.Ru

Амурская ул., д. 27

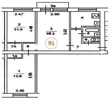
База каталог, Кол-во подъездов: 4, I-511, Москва, Гольяново, Площадь парковки: 0, Пассажирский лифт: 0, От метро: 590, Восточный, нет, Наименьшее кол-во этажей: 5, Наибольшее кол-во этажей: 5, Щёлковская, Кол-во помещений: 81, Кол-во нежилых помещений: 1, Год ввода в эксплуатацию: 1963, 3-комн, Кол-во жилых помещений: 80, D, дом 27, да, да, да, да, да, да, Грузовых лифтов: 0, Год постройки: 1963, Амурская улица, 37.794289, 55.813840
Свяжитесь со мной на счет цены
10 дн.
T55S813840L37S794289T

На карте


Условия сделки

Источник


Старт продаж

Возможно заинтересует