Top.Mail.Ru

Амурская ул., д. 29

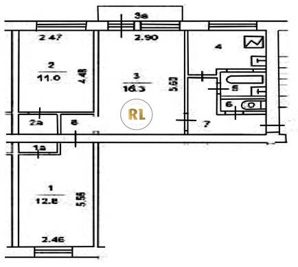
База каталог, Кол-во подъездов: 4, I-511, Москва, Гольяново, Площадь парковки: 0, Пассажирский лифт: 0, От метро: 560, Восточный, нет, Наименьшее кол-во этажей: 5, Наибольшее кол-во этажей: 5, Щёлковская, Кол-во помещений: 81, Кол-во нежилых помещений: 1, Год ввода в эксплуатацию: 1962, 3-комн, Кол-во жилых помещений: 80, D, дом 29, да, да, да, да, да, да, Грузовых лифтов: 0, Год постройки: 1962, Амурская улица, 37.795448, 55.813855
Свяжитесь со мной на счет цены
10 дн.
T55S813855L37S795448T

На карте


Условия сделки

Источник


Старт продаж

Возможно заинтересует