Top.Mail.Ru

Врачебный проезд, д. 9

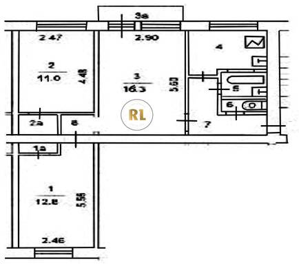
База каталог, Кол-во подъездов: 4, Имеется, I-511, Москва, Покровское-Стрешнево, Площадь парковки: 0, Пассажирский лифт: 0, От метро: 1030, Северо-Западный, нет, Наименьшее кол-во этажей: 1, Наибольшее кол-во этажей: 5, Щукинская, Кол-во помещений: 80, Кол-во нежилых помещений: 0, Год ввода в эксплуатацию: 1960, 3-комн, Кол-во жилых помещений: 80, Не присвоен, дом 9, нет, да, да, да, да, да, Имеется, Грузовых лифтов: 0, Год постройки: 1960, Врачебный проезд, 37.453980, 55.814082
Свяжитесь со мной на счет цены
10 дн.
T55S814082L37S453980T

На карте


Условия сделки

Источник


Старт продаж

Возможно заинтересует