Top.Mail.Ru

Ивантеевская ул., д. 32, к. 3

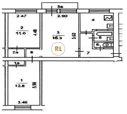
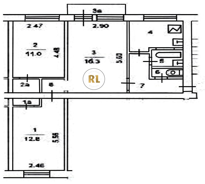
База каталог, Кол-во подъездов: 3, I-511, Москва, Богородское, Площадь парковки: 0, Пассажирский лифт: 0, От метро: 149, Восточный, нет, Наименьшее кол-во этажей: 1, Наибольшее кол-во этажей: 5, Бульвар Рокоссовского, Кол-во помещений: 59, Кол-во нежилых помещений: 0, Год ввода в эксплуатацию: 1959, 3-комн, Кол-во жилых помещений: 59, В, дом 32, корпус 3, да, да, да, да, да, да, Грузовых лифтов: 0, Год постройки: 1959, Ивантеевская улица, 37.730293, 55.814406
Свяжитесь со мной на счет цены
10 дн.
T55S814406L37S730293T

На карте


Условия сделки

Источник


Старт продаж

Возможно заинтересует