Top.Mail.Ru

Маломосковская ул., д. 21, к. 4

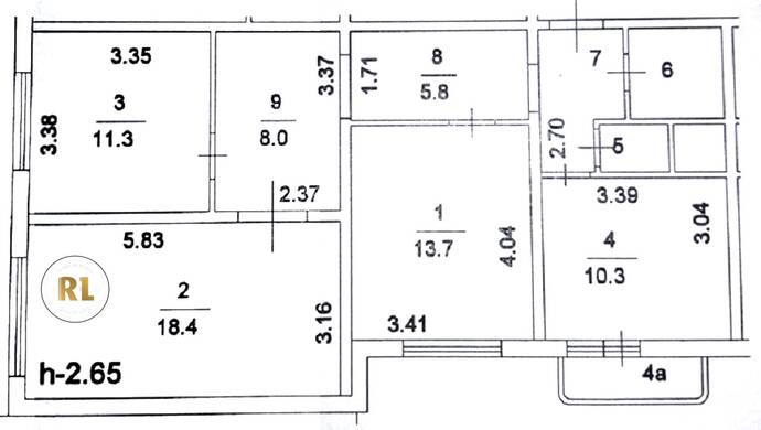
База каталог, Кол-во подъездов: 3, Отсутствует, КОПЭ, Москва, Алексеевский, Площадь парковки: 0, Пассажирский лифт: 3, От метро: 1060, Северо-Восточный, нет, Наименьшее кол-во этажей: 14, Наибольшее кол-во этажей: 19, ВДНХ, Кол-во помещений: 177, Кол-во нежилых помещений: 5, Год ввода в эксплуатацию: 2005, 3-комн, Кол-во жилых помещений: 172, Не присвоен, дом 21, корпус 4, нет, да, да, да, да, да, Имеется, Грузовых лифтов: 3, Год постройки: 2005, Маломосковская улица, 37.650235, 55.814431
Свяжитесь со мной на счет цены
10 дн.
T55S814431L37S650235T

На карте


Условия сделки

Источник


Старт продаж

Возможно заинтересует