Top.Mail.Ru

бульвар Маршала Рокоссовского, д. 25

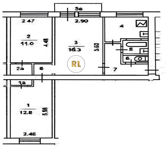
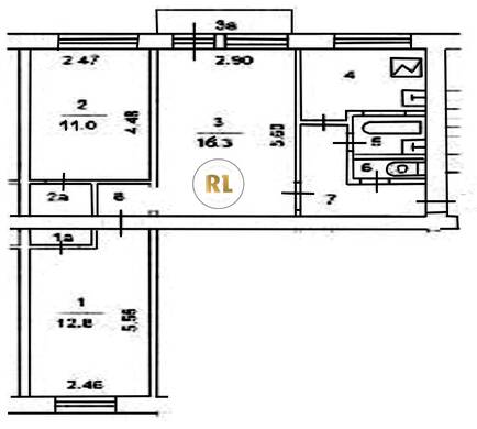
База каталог, Кол-во подъездов: 4, Имеется, I-511, Москва, Богородское, Площадь парковки: 0, Пассажирский лифт: 0, От метро: 1090, Восточный, нет, Наименьшее кол-во этажей: 5, Наибольшее кол-во этажей: 5, Бульвар Рокоссовского, Кол-во помещений: 81, Кол-во нежилых помещений: 1, Год ввода в эксплуатацию: 1963, 3-комн, Кол-во жилых помещений: 80, Не присвоен, дом 25, нет, да, да, да, да, да, Имеется, Грузовых лифтов: 0, Год постройки: 1963, бульвар Маршала Рокоссовского, 37.718579, 55.814436
Свяжитесь со мной на счет цены
10 дн.
T55S814436L37S718579T

На карте


Условия сделки

Источник


Старт продаж

Возможно заинтересует