Top.Mail.Ru

Миллионная ул., д. 8, к. 3

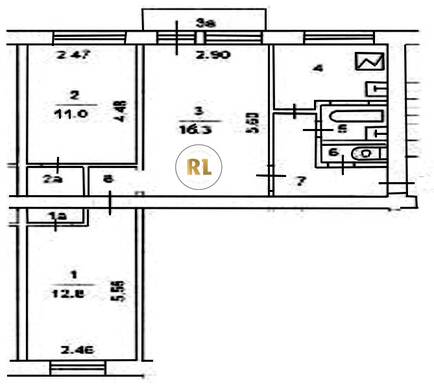
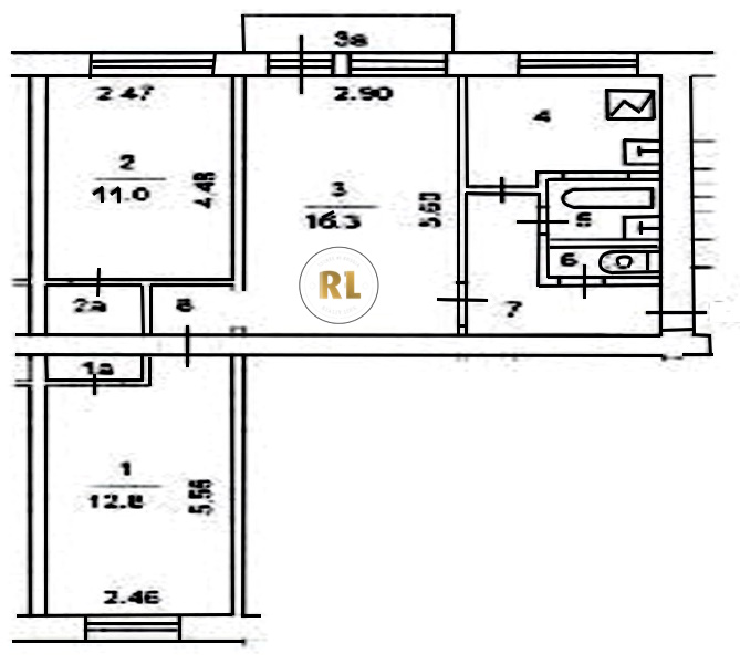
База каталог, Кол-во подъездов: 3, Отсутствует, I-511, Москва, Богородское, Площадь парковки: 0, Пассажирский лифт: 0, От метро: 2000, Восточный, нет, Наименьшее кол-во этажей: 5, Наибольшее кол-во этажей: 5, Белокаменная, Кол-во помещений: 60, Кол-во нежилых помещений: 0, Год ввода в эксплуатацию: 1970, 3-комн, Кол-во жилых помещений: 60, Не присвоен, дом 8, корпус 3, нет, да, да, да, нет, нет, Отсутствует, Грузовых лифтов: 0, Год постройки: 1970, Миллионная улица, 37.700011, 55.814826
Свяжитесь со мной на счет цены
10 дн.
T55S814826L37S700011T

На карте


Условия сделки

Источник


Старт продаж

Возможно заинтересует