Top.Mail.Ru

улица Константинова, д. 8

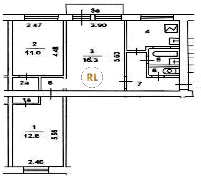
База каталог, Кол-во нежилых помещений: 0, I-511, Москва, Алексеевский, Пассажирский лифт: 0, От метро: 1210, Северо-Восточный, да, Наименьшее кол-во этажей: 5, Наибольшее кол-во этажей: 5, ВДНХ, Кол-во помещений: 80, Кол-во подъездов: 4, 3-комн, Год ввода в эксплуатацию: 1959, Кол-во жилых помещений: 80, Не присвоен, дом 8, нет, да, да, да, да, нет, Имеется, Грузовых лифтов: 0, Год постройки: 1959, улица Константинова, 37.654340, 55.815059
Свяжитесь со мной на счет цены
10 дн.
T55S815059L37S654340T

На карте


Условия сделки

Источник


Старт продаж

Возможно заинтересует