Top.Mail.Ru

Ярославская ул., д. 7

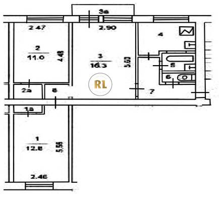
База каталог, Кол-во подъездов: 3, I-511, Москва, Алексеевский, Пассажирский лифт: 0, От метро: 730, Северо-Восточный, да, Наименьшее кол-во этажей: 5, Наибольшее кол-во этажей: 5, ВДНХ, Кол-во помещений: 60, Кол-во нежилых помещений: 0, Год ввода в эксплуатацию: 1960, 3-комн, Кол-во жилых помещений: 60, дом 7, нет, да, да, да, да, да, Имеется, Грузовых лифтов: 0, Год постройки: 1960, Ярославская улица, 37.645681, 55.815089
Свяжитесь со мной на счет цены
10 дн.
T55S815089L37S645681T

На карте


Условия сделки

Источник


Старт продаж

Возможно заинтересует