Top.Mail.Ru

Ивантеевская ул., д. 32, к. 1

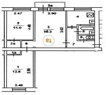
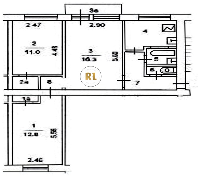
База каталог, Кол-во подъездов: 3, I-511, Москва, Богородское, Площадь парковки: 0, Пассажирский лифт: 0, От метро: 94, Восточный, нет, Наименьшее кол-во этажей: 1, Наибольшее кол-во этажей: 5, Бульвар Рокоссовского, Кол-во помещений: 60, Кол-во нежилых помещений: 0, Год ввода в эксплуатацию: 1960, 3-комн, Кол-во жилых помещений: 60, С, дом 32, корпус 1, да, да, да, да, да, да, Имеется, Грузовых лифтов: 0, Год постройки: 1960, Ивантеевская улица, 37.730796, 55.815256
Свяжитесь со мной на счет цены
10 дн.
T55S815256L37S730796T

На карте


Условия сделки

Источник


Старт продаж

Возможно заинтересует