Top.Mail.Ru

Миллионная ул., д. 10А

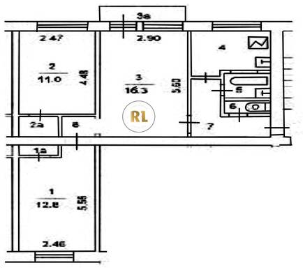
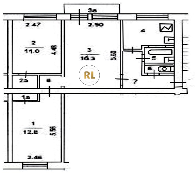
База каталог, Кол-во подъездов: 4, Отсутствует, I-511, Москва, Богородское, Площадь парковки: 0, Пассажирский лифт: 0, От метро: 1960, Восточный, нет, Наименьшее кол-во этажей: 5, Наибольшее кол-во этажей: 5, Белокаменная, Кол-во помещений: 56, Кол-во нежилых помещений: 0, Год ввода в эксплуатацию: 1960, 3-комн, Кол-во жилых помещений: 56, Не присвоен, дом 10А, нет, да, да, да, нет, нет, Отсутствует, Грузовых лифтов: 0, Год постройки: 1960, Миллионная улица, 37.699220, 55.815408
Свяжитесь со мной на счет цены
10 дн.
T55S815408L37S699220T

На карте


Условия сделки

Источник


Старт продаж

Возможно заинтересует