Top.Mail.Ru

улица Кулакова, д. 1, к. 1

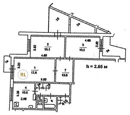
База каталог, Кол-во подъездов: 4, П-3/16, Москва, Строгино, Площадь парковки: 0, Пассажирский лифт: 4, От метро: 1490, Северо-Западный, нет, Наименьшее кол-во этажей: 16, Наибольшее кол-во этажей: 16, Строгино, Кол-во помещений: 255, Кол-во нежилых помещений: 0, Год ввода в эксплуатацию: 1982, 3-комн, Кол-во жилых помещений: 255, Не присвоен, дом 1, корпус 1, нет, да, да, да, да, нет, Имеется, Грузовых лифтов: 4, Год постройки: 1982, улица Кулакова, 37.401914, 55.815600
Свяжитесь со мной на счет цены
10 дн.
T55S815600L37S401914T

На карте


Условия сделки

Источник


Старт продаж

Возможно заинтересует