Top.Mail.Ru

улица Цандера, д. 4, к. 1

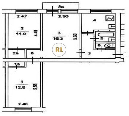
База каталог, Кол-во подъездов: 3, Отсутствует, I-511, Москва, Останкинский, Площадь парковки: 0, Пассажирский лифт: 0, От метро: 810, Северо-Восточный, нет, Наименьшее кол-во этажей: 5, Наибольшее кол-во этажей: 5, ВДНХ, Кол-во помещений: 61, Кол-во нежилых помещений: 1, Год ввода в эксплуатацию: 1959, 3-комн, Кол-во жилых помещений: 60, Не присвоен, дом 4, корпус 1, нет, да, да, да, да, да, Имеется, Грузовых лифтов: 0, Год постройки: 1959, улица Цандера, 37.630975, 55.816879
Свяжитесь со мной на счет цены
10 дн.
T55S816879L37S630975T

На карте


Условия сделки

Источник


Старт продаж

Возможно заинтересует