Top.Mail.Ru

улица 9 Мая, д. 28

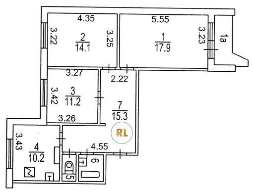
База каталог, Наибольшее кол-во этажей: 17, П-44, Москва, Восточный, Пассажирский лифт: 3, Восточный, да, Наименьшее кол-во этажей: 17, Кол-во помещений: 192, Год ввода в эксплуатацию: 1989, Кол-во подъездов: 3, Кол-во нежилых помещений: 0, 3-комн, Кол-во жилых помещений: 192, Не присвоен, дом 28, Грузовых лифтов: 3, Год постройки: 1989, улица 9 Мая, 37.875281, 55.817562
15 800 000 Р
10 дн.
T55S817562L37S875281T
+

На карте


Условия сделки

Источник


Старт продаж