Top.Mail.Ru

Большая Черемушкинская ул., д. 9, к. 3

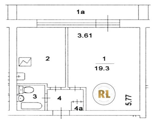
База каталог, Кол-во подъездов: 1, нет, II-68-01, Москва, Котловка, Нет, Пассажирский лифт: 2, От метро: 800, Юго-Западный, да, Наименьшее кол-во этажей: 16, Наибольшее кол-во этажей: 16, Крымская, Кол-во помещений: 111, Кол-во нежилых помещений: 0, Год ввода в эксплуатацию: 1974, 1-комн, Кол-во жилых помещений: 111, E, Нет, дом 9, корпус 3, нет, да, да, да, да, да, Грузовых лифтов: 0, Нет, Год постройки: 1974, Большая Черемушкинская улица, 37.599525, 55.686629
Свяжитесь со мной на счет цены
10 дн.
O55S686629L37S599525O

На карте


Условия сделки

Источник


Старт продаж

Возможно заинтересует