Top.Mail.Ru

Погонный проезд, д. 6

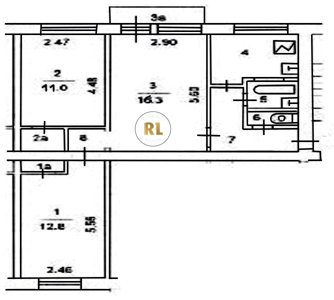
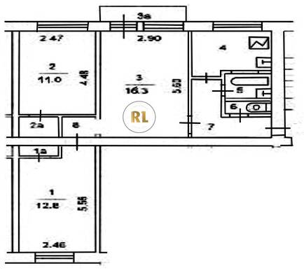
База каталог, Кол-во подъездов: 6, I-511, Москва, Богородское, Пассажирский лифт: 0, От метро: 1580, Восточный, да, Наименьшее кол-во этажей: 5, Наибольшее кол-во этажей: 5, Белокаменная, Кол-во помещений: 139, Кол-во нежилых помещений: 0, Год ввода в эксплуатацию: 1967, 3-комн, Кол-во жилых помещений: 139, дом 6, нет, да, да, да, да, нет, Грузовых лифтов: 0, Год постройки: 1967, Погонный проезд, 37.704619, 55.817987
Свяжитесь со мной на счет цены
10 дн.
T55S817987L37S704619T

На карте


Условия сделки

Источник


Старт продаж

Возможно заинтересует