Top.Mail.Ru

Погонный проезд, д. 8

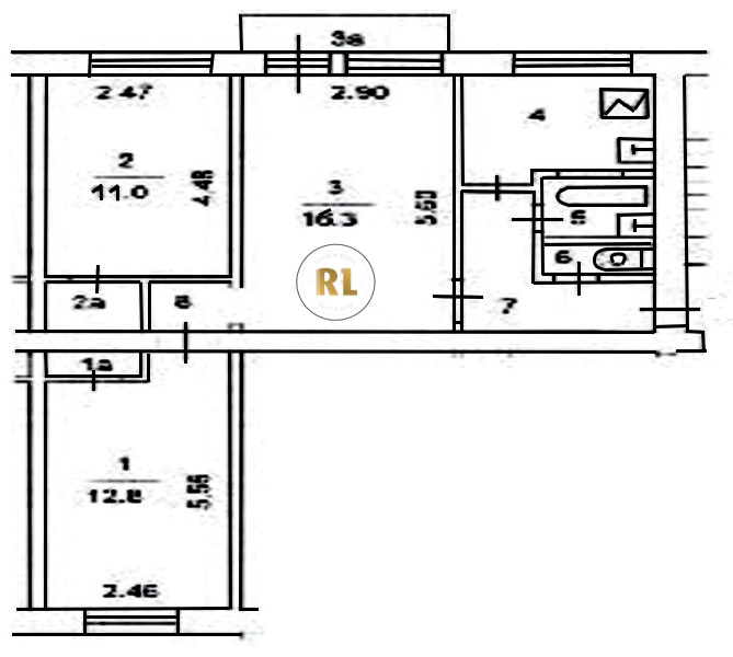
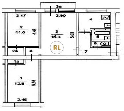
База каталог, Кол-во подъездов: 7, I-511, Москва, Богородское, Пассажирский лифт: 0, От метро: 1480, Восточный, да, Наименьшее кол-во этажей: 5, Наибольшее кол-во этажей: 5, Белокаменная, Кол-во помещений: 139, Кол-во нежилых помещений: 0, Год ввода в эксплуатацию: 1968, 3-комн, Кол-во жилых помещений: 139, дом 8, нет, да, да, да, да, нет, Грузовых лифтов: 0, Год постройки: 1968, Погонный проезд, 37.705302, 55.818124
Свяжитесь со мной на счет цены
10 дн.
T55S818124L37S705302T

На карте


Условия сделки

Источник


Старт продаж

Возможно заинтересует