Top.Mail.Ru

улица Водников, д. 3

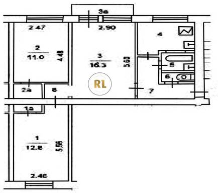
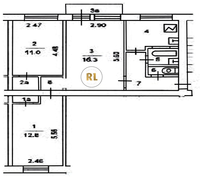
База каталог, Кол-во подъездов: 3, Имеется, I-511, Москва, Покровское-Стрешнево, Площадь парковки: 0, Пассажирский лифт: 0, От метро: 1370, Северо-Западный, нет, Наименьшее кол-во этажей: 1, Наибольшее кол-во этажей: 5, Спартак, Кол-во помещений: 60, Кол-во нежилых помещений: 0, Год ввода в эксплуатацию: 1974, 3-комн, Кол-во жилых помещений: 60, Не присвоен, дом 3, нет, да, да, да, да, нет, Имеется, Грузовых лифтов: 0, Год постройки: 1974, улица Водников, 37.450099, 55.818169
Свяжитесь со мной на счет цены
10 дн.
T55S818169L37S450099T

На карте


Условия сделки

Источник


Старт продаж

Возможно заинтересует