Top.Mail.Ru

улица Яблочкова, д. 12

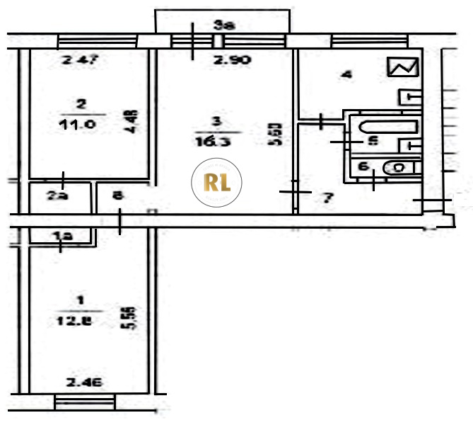
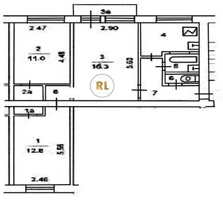
База каталог, Кол-во подъездов: 5, Отсутствует, I-511, Москва, Бутырский, Площадь парковки: 0, Пассажирский лифт: 0, От метро: 510, Северо-Восточный, нет, Наименьшее кол-во этажей: 5, Наибольшее кол-во этажей: 5, Тимирязевская, Кол-во помещений: 85, Кол-во нежилых помещений: 8, Год ввода в эксплуатацию: 1969, 3-комн, Кол-во жилых помещений: 77, D, дом 12, да, да, да, да, да, да, Отсутствует, Грузовых лифтов: 0, Год постройки: 1969, улица Яблочкова, 37.581460, 55.818270
Свяжитесь со мной на счет цены
10 дн.
T55S818270L37S581460T

На карте


Условия сделки

Источник


Старт продаж

Возможно заинтересует