Top.Mail.Ru

улица 9 Мая, д. 26

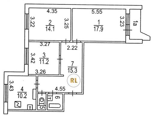
База каталог, Наибольшее кол-во этажей: 17, П-44, Москва, Восточный, Пассажирский лифт: 3, Восточный, да, Наименьшее кол-во этажей: 17, Кол-во помещений: 203, Год ввода в эксплуатацию: 1985, Кол-во подъездов: 3, Кол-во нежилых помещений: 0, 3-комн, Кол-во жилых помещений: 203, Не присвоен, дом 26, Грузовых лифтов: 3, Год постройки: 1985, улица 9 Мая, 37.873700, 55.818392
Свяжитесь со мной на счет цены
10 дн.
T55S818392L37S873700T

На карте


Условия сделки

Источник


Старт продаж

Возможно заинтересует