Top.Mail.Ru

Алтайская ул., д. 4

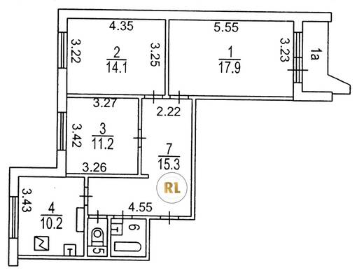
База каталог, Кол-во помещений: 461, П-44, Москва, Гольяново, Площадь парковки: 0, Пассажирский лифт: 7, От метро: 1210, Восточный, нет, Наименьшее кол-во этажей: 17, Наибольшее кол-во этажей: 17, Щёлковская, Кол-во подъездов: 7, Год ввода в эксплуатацию: 1955, Кол-во нежилых помещений: 10, 3-комн, Кол-во жилых помещений: 451, дом 4, нет, да, да, да, да, нет, Грузовых лифтов: 7, Год постройки: 1995, Алтайская улица, 37.803317, 55.819454
Свяжитесь со мной на счет цены
10 дн.
T55S819454L37S803317T

На карте


Условия сделки

Источник


Старт продаж

Возможно заинтересует