Top.Mail.Ru

улица Константинова, д. 34, к. 1

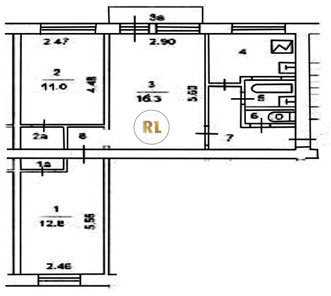
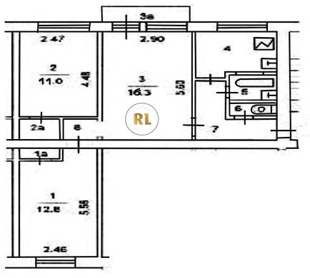
База каталог, Кол-во нежилых помещений: 0, I-511, Москва, Алексеевский, Пассажирский лифт: 0, От метро: 1430, Северо-Восточный, да, Наименьшее кол-во этажей: 5, Наибольшее кол-во этажей: 5, ВДНХ, Кол-во помещений: 60, Кол-во подъездов: 3, 3-комн, Год ввода в эксплуатацию: 1962, Кол-во жилых помещений: 60, Не присвоен, дом 34, корпус 1, нет, да, да, да, да, нет, Имеется, Грузовых лифтов: 0, Год постройки: 1962, улица Константинова, 37.659694, 55.820000
Свяжитесь со мной на счет цены
10 дн.
T55S820000L37S659694T

На карте


Условия сделки

Источник


Старт продаж

Возможно заинтересует